Proyecto Edificio Torres de Tajamar
| dc.contributor.author | Bresciani B., Carlos | |
| dc.contributor.author | Valdés P., Héctor | |
| dc.contributor.author | Castillo V., Fernando | |
| dc.contributor.author | García - Huidobro G., Carlos | |
| dc.contributor.author | Bolton, Carlos | |
| dc.contributor.author | Larraín P., Sergio | |
| dc.contributor.author | Prieto V., Luis | |
| dc.contributor.author | Lorca, A. | |
| dc.coverage.spatial | Av. Providencia / Miguel Claro. Providencia. Santiago | es_ES |
| dc.date.accessioned | 2018-10-17T14:35:00Z | |
| dc.date.available | 2018-10-17T14:35:00Z | |
| dc.date.created | 1963-1964 | |
| dc.identifier.other | FBVCH - PLr038-0002 | es_ES |
| dc.identifier.uri | https://archivospatrimoniales.uc.cl/handle/123456789/4272 | |
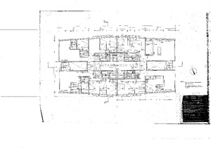
| dc.description.abstract | Planos originales de: Planta 3o p. - Planta 4o p. - Planta 26o p. - Planta 27o p. - Planta casa de máquinas , altillo motores, techo - Planta y corte escaleras tipo. | es_ES |
| dc.format.extent | Pliego | es_ES |
| dc.language.iso | es | es_ES |
| dc.relation.ispartof | Archivo de Originales FADEU | es_ES |
| dc.relation.ispartofseries | Fondo Documental Bresciani - Valdés - Castillo - Huidobro (FBVCH) | es_ES |
| dc.title | Proyecto Edificio Torres de Tajamar | es_ES |
| dc.type | Plano | |
| dc.ubicacion | Biblioteca Lo Contador | |
| dc.nota | Torre A | es_ES |
| dc.fuente.origen | FADEU |











