- DSpace Home
- Archivos UC
- Archivo de Originales FADEU
- Fondo Documental Bresciani - Valdés - Castillo - Huidobro (FBVCH)
- View Item
| Titulo: |
Proyecto Edificio Torres de Tajamar
|
| Autor: | Bresciani B., Carlos; Valdés P., Héctor; Castillo V., Fernando; García - Huidobro G., Carlos; Bolton, Carlos; Larraín P., Sergio; Prieto V., Luis; Lorca, A.; |
| Fecha de creación: | 1962 |
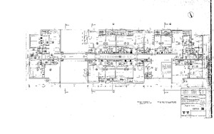
| Resumen: |
Planos originales de: Planta 6o p. - Planta 7o p. (mod. 1964) - Planta 8o p. (mod. 1964) - Planta 9o p. (mod. 1964).
|
|
Colección:
| Archivo de Originales FADEU |
|
Serie:
| Fondo Documental Bresciani - Valdés - Castillo - Huidobro (FBVCH) |
| Ubicación: |
Biblioteca Lo Contador
|
| Identificador: | FBVCH - PLr041-0002 |
| Cita: |
Bresciani B., Carlos.
Valdés P., Héctor.
Castillo V., Fernando.
García - Huidobro G., Carlos.
Bolton, Carlos.
Larraín P., Sergio.
Prieto V., Luis.
Lorca, A..
(1962).
Proyecto Edificio Torres de Tajamar.
[Plano].
Archivo de Originales FADEU,
Biblioteca Lo Contador,
Pontificia Universidad Católica de Chile.
|
Documentos Disponibles






